Logo Lar do Regueiro

Planificación de Espacios

Diseño pensado para la vida

Nuestro proyecto arquitectónico combina la eficiencia energética con la comodidad total. Cada espacio ha sido diseñado bajo principios bioclimáticos para aprovechar al máximo la luz natural y el entorno de Friol.

Plano General del Complejo

Plano General de la Parcela

Distribución de los 63.000 m², zonas verdes, huertos y viales de acceso. La zona sombreada pertenece al Ayuntamiento.

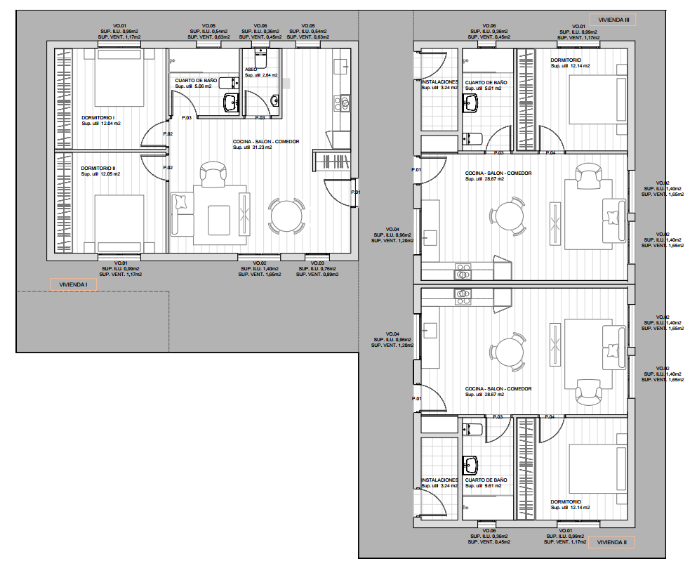
Plano Tipo de Vivienda

Módulo habitacional

Módulo habitacional con 3 viviendas bajo una misma cubierta a dos aguas y acceso directo a espacios comunes.

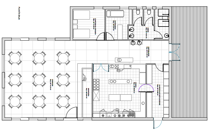
Plano Centro Social

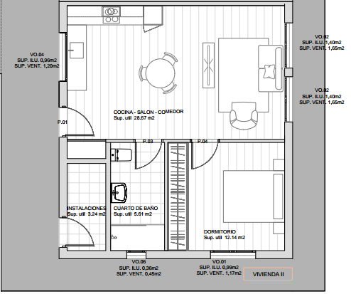
Vivienda de dos dormitorios

Detalle de distribución: vivienda con dos dormitorios, salón, cocina, servicio y baño adaptado

Alzado Bioclimático

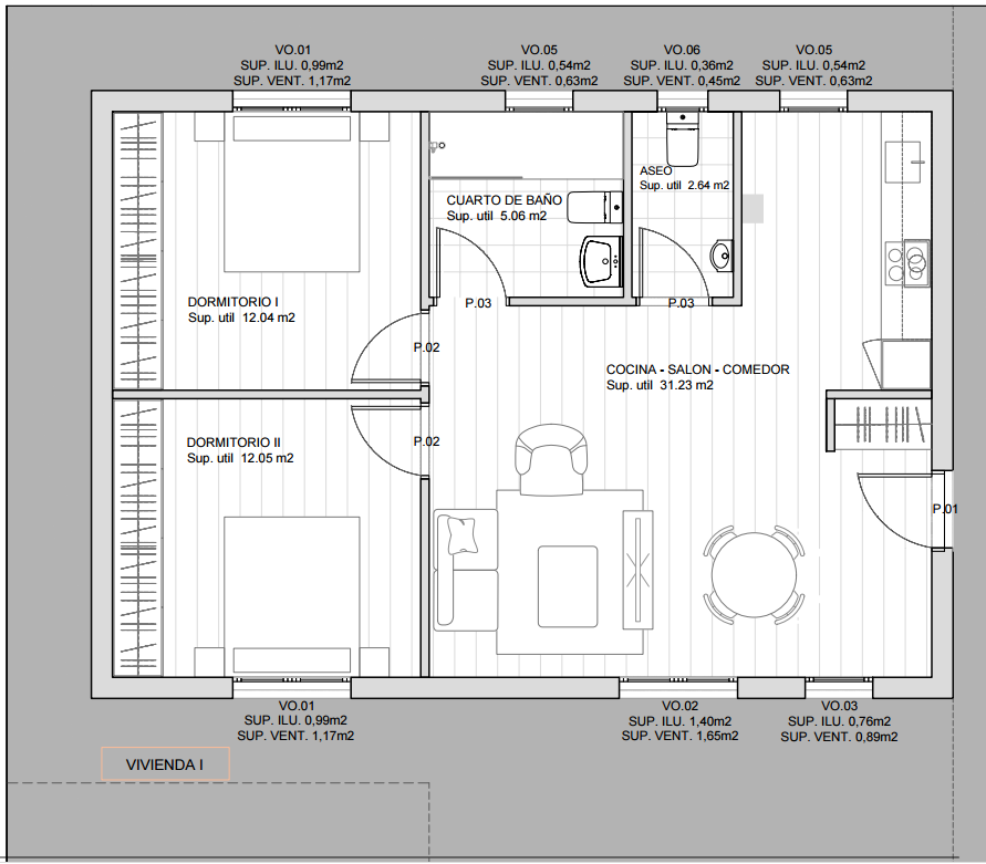
Vivienda de un dormitorio

Detalle de distribución: vivienda con un dormitorio, salón, cocina y baño adaptado..

Plano Centro Social

Alzado del módulo

Vista frontal de las dos viviendas con pasillo de acceso central.

Alzado Bioclimático

Edificio común

Comedor y sala de usos múltiples. Cocina industrial y almacén.

← Volver al Inicio